Skip to content

Krista Leger

  • Revit
  • AutoCAD
  • Estimating
  • Structural Design
  • About & Resume
  • PHOTOGRAPHY

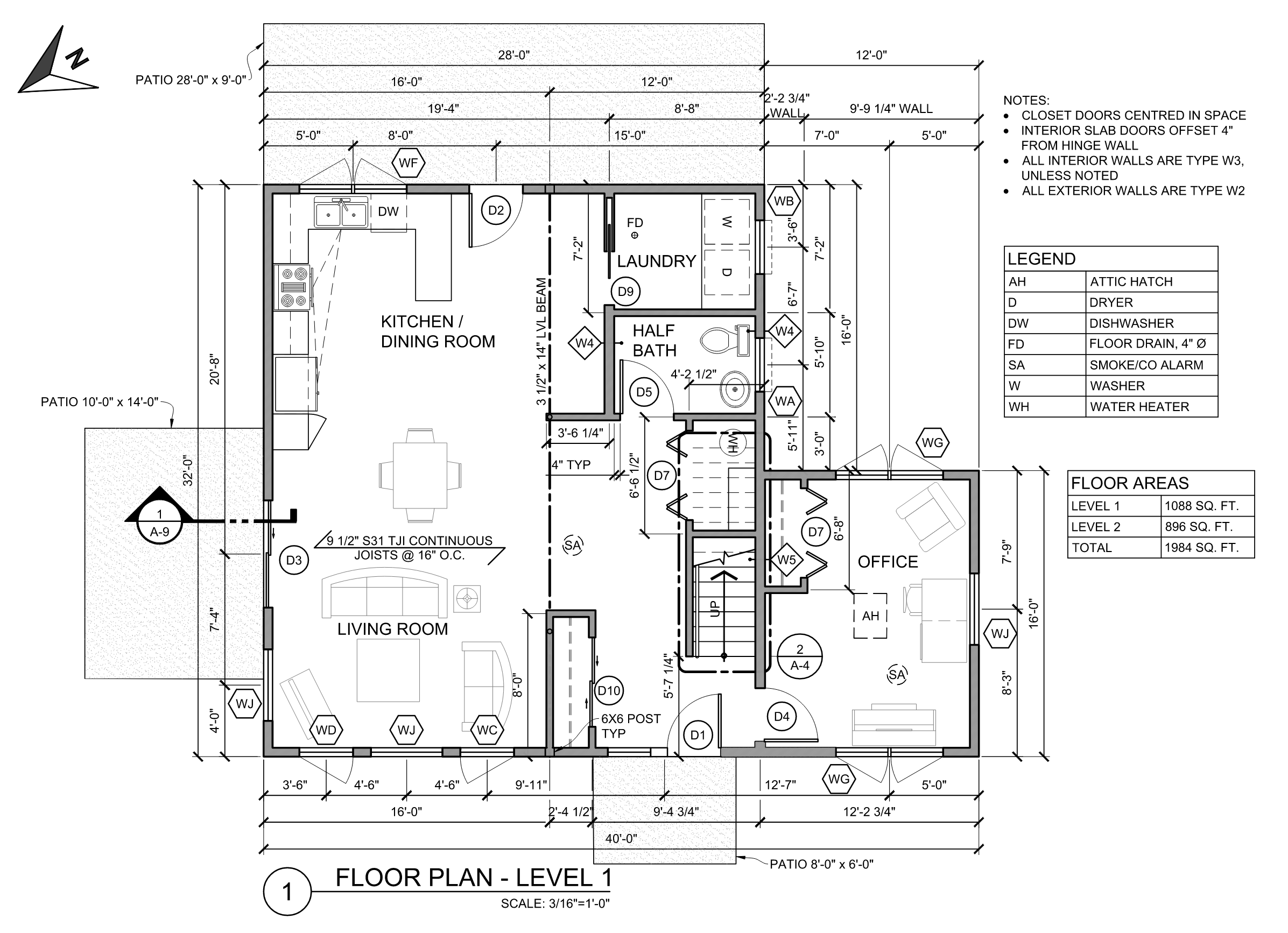
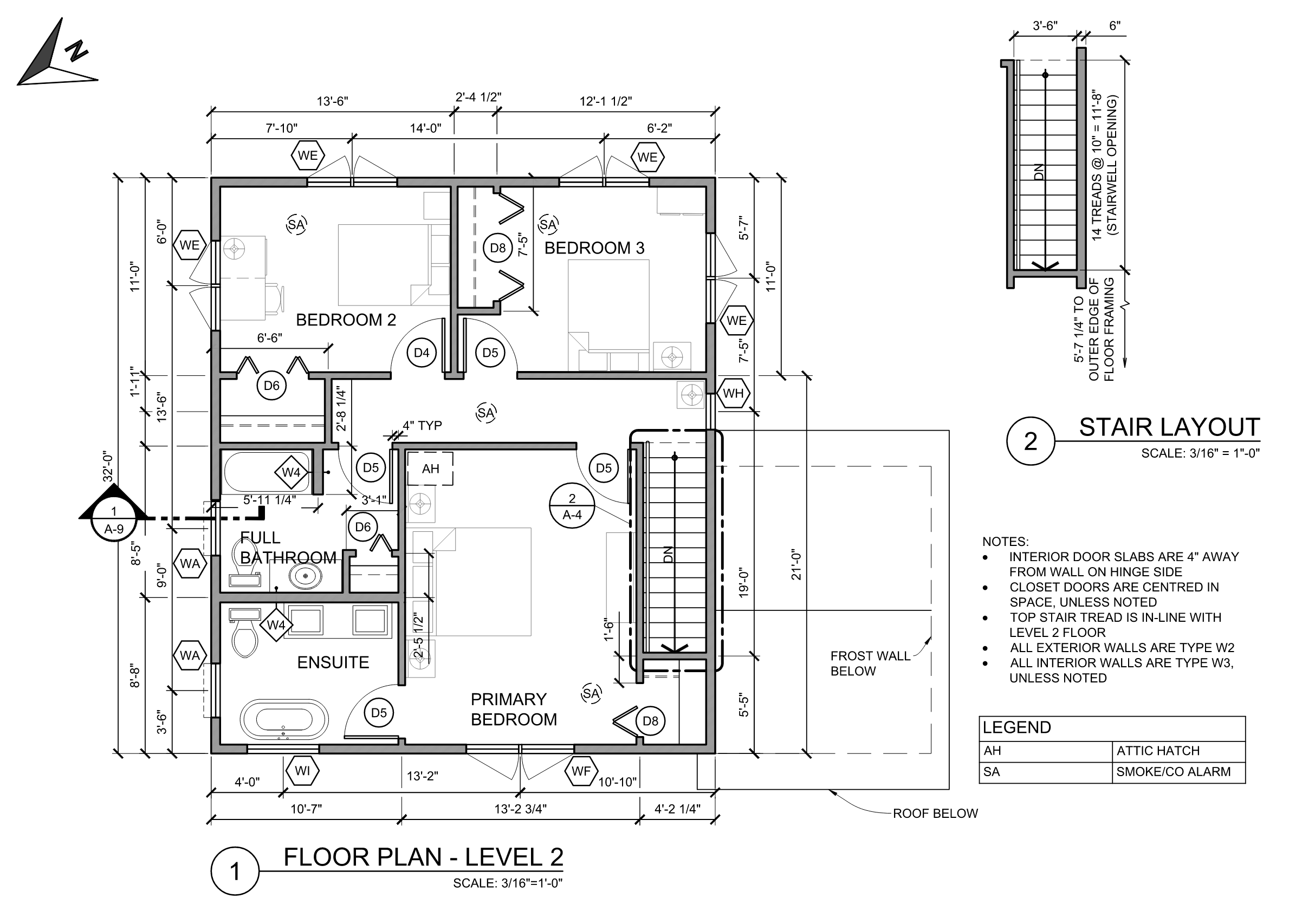
AUTOCAD

residential design project

YEAR ONE

Plans
Section & Wall Legend
Screenshot 2026-02-17 172634

plans

Screenshot 2026-02-17 172544
Screenshot 2026-02-17 172604
Screenshot 2026-02-17 172616

section & wall legend

Screenshot 2026-02-17 172501
Screenshot 2026-02-17 172524

© 2026 Krista Leger. All Rights Reserved.

Scroll To Top